Byt 1 + kk s výtahem a zahradou ve zděném domě v centru Českých Budějovic.

Insgesamt 10 Fotos, alle anzeigen
* Name
* Email
* Telefon
* Nachricht
 
nahrávám...

Byt 1 + kk s výtahem a zahradou ve zděném domě v centru Českých Budějovic.

11.000 ,- per monat
Byt 1 + kk s výtahem a zahradou ve zděném domě v centru Českých Budějovic.
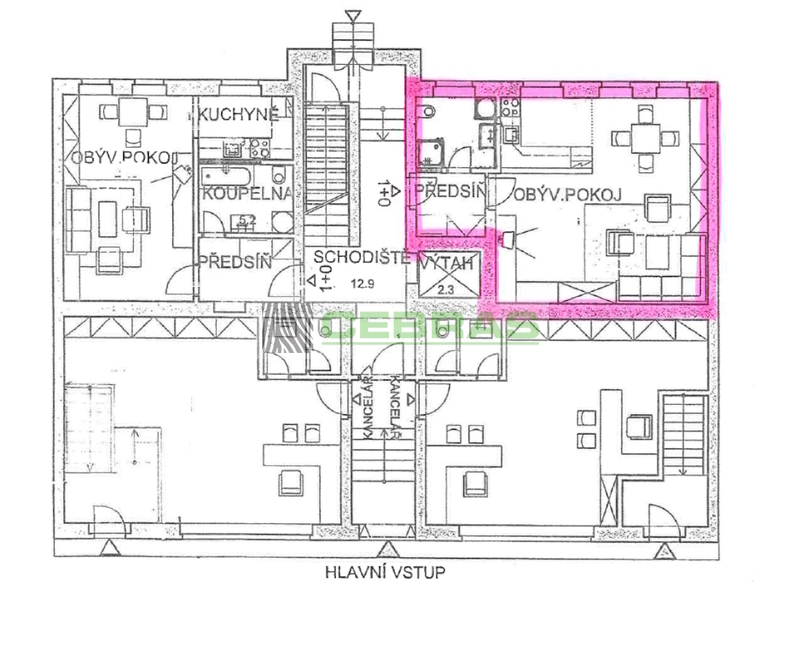
Zděný byt centru Českých Budějovic se nachází v Nové ulici, pouze několik minut od náměstí. Celý objekt je kompletně rekonstruována a moderně adaptován. Má výměru 41 m2, je ve 1. NP patře s výtahem. Dispozice- vstupní chodba, pokoj a kuchyňská část s kuchyňskou linkou s výhledem do zahrad, koupelna se sprchovým koutem a wc. Dům je napojen na bezpečnostní a kamerový systém. Ke společnému užívání je kolárna a pěkně udržovaná zahrada. Byt je vytápěn centrálně, má vlastní měření spotřeby tepla, vody i elektřiny. Společné prostory jsou uklízeny úklidovou službou. probíhá výměna kuchyňského koutu a úprava koupelny - původní fotografie. Majitel preferuje nekuřáky bez domácích mazlíčků s dobrou platební morálkou. Cena nájmu činí 11 000 Kč/ měsíc, energie, voda a ostatní cca 3 000 Kč/ měsíc. Kauce ve výši jednoho nájmu. Provize RK činí jeden nájem + DPH. Volné ihned.

Detailní informace a celou nabídku sledujte na webových stránkách naší realitní kanceláře.

#rkcebras
#cebrasrk
Makler:
Immobilien-Makler: Pavel Dědič
Ing. Pavel Dědič
telefon: 602193092
p.dedic@cebras.cz
Art der Immobilie:
Wohnung
Objektnummer:
251001PD
Art der Wohnung:
1+kk
Operation:
Vermietung
Reservierung:
Reserviert
Eigentum:
persönlich
Adresse:
České Budějovice
Nová 2026/14
Wohnung nummer:
1
K nastěhování od:
20.10.2025
Geschossfläche:
41 m2
Stockwerk:
Zweite Stockwerk von 4 Anzahl der Geschosse
Zustand des Objekts:
Velmi dobrý
Konstruktion:
Ziegel
Standort des Objekts:
Dorfzentrum
Kommunikation:
Asphalt
Informationen von einem Broker:
Byt 1 + kk 41 m2 s výtahem a zahradou ve zděném domě v centru Českých Budějovic.
PENB:
D - Méně úsporná
PENB-Typ:
Dekret n. 78/2013 Sb.
Diese GPS-Koordinate wird angezeigt:
48° 58' 39.003"N, 14° 28' 46.199"E